Goed onderhouden tussenwoning met verrassend veel ruimte en comfort en een mooi bijgebouw, gelegen op een rustige en groene locatie.
Aan de Wingerd in Schaijk staat deze ruime tussenwoning, rustig gelegen aan een doodlopend straatje. Een degelijk gebouwde woning met een prettige indeling, veel lichtinval en meer leefruimte dan je op het eerste gezicht zou verwachten.
Ligging
De Wingerd ligt in ruim opgezette woonwijk met volop parkeergelegenheid, zowel in de straat als onder de eigen carport. De omgeving kenmerkt zich door veel groen, speelvoorzieningen en een gemoedelijke sfeer, een plek waar kinderen nog op straat kunnen spelen. Winkels, scholen en sportvoorzieningen bevinden zich op korte afstand, evenals natuur- en wandelgebieden.
Begane grond
Via de overdekte carport met lichtkoepel kom je binnen in de entree met meterkast, toiletruimte en toegang tot de bijkeuken. Vanuit de hal bereik je de keuken en woonkamer.
De woonkamer is ruim van opzet en biedt veel privacy. Dankzij de grote raampartijen aan de achterzijde geniet de ruimte van een prettige lichtinval. Er is volop ruimte voor zowel een comfortabele zithoek als een royale eethoek.
De keuken en eetkamer staan in verbinding met de voorzijde van de woning en kijken uit op de carport. De trapopgang, centraal in de woning geplaatst, zorgt voor een natuurlijke scheiding tussen de verschillende leefruimtes.
Eerste verdieping
Hier bevinden zich drie slaapkamers, waarvan twee royaal en één iets compacter. De royale badkamer met natuurlijke ventilatie is in een neutrale kleurstelling afgewerkt en voorzien van een inloopdouche, toilet en dubbele wastafel.
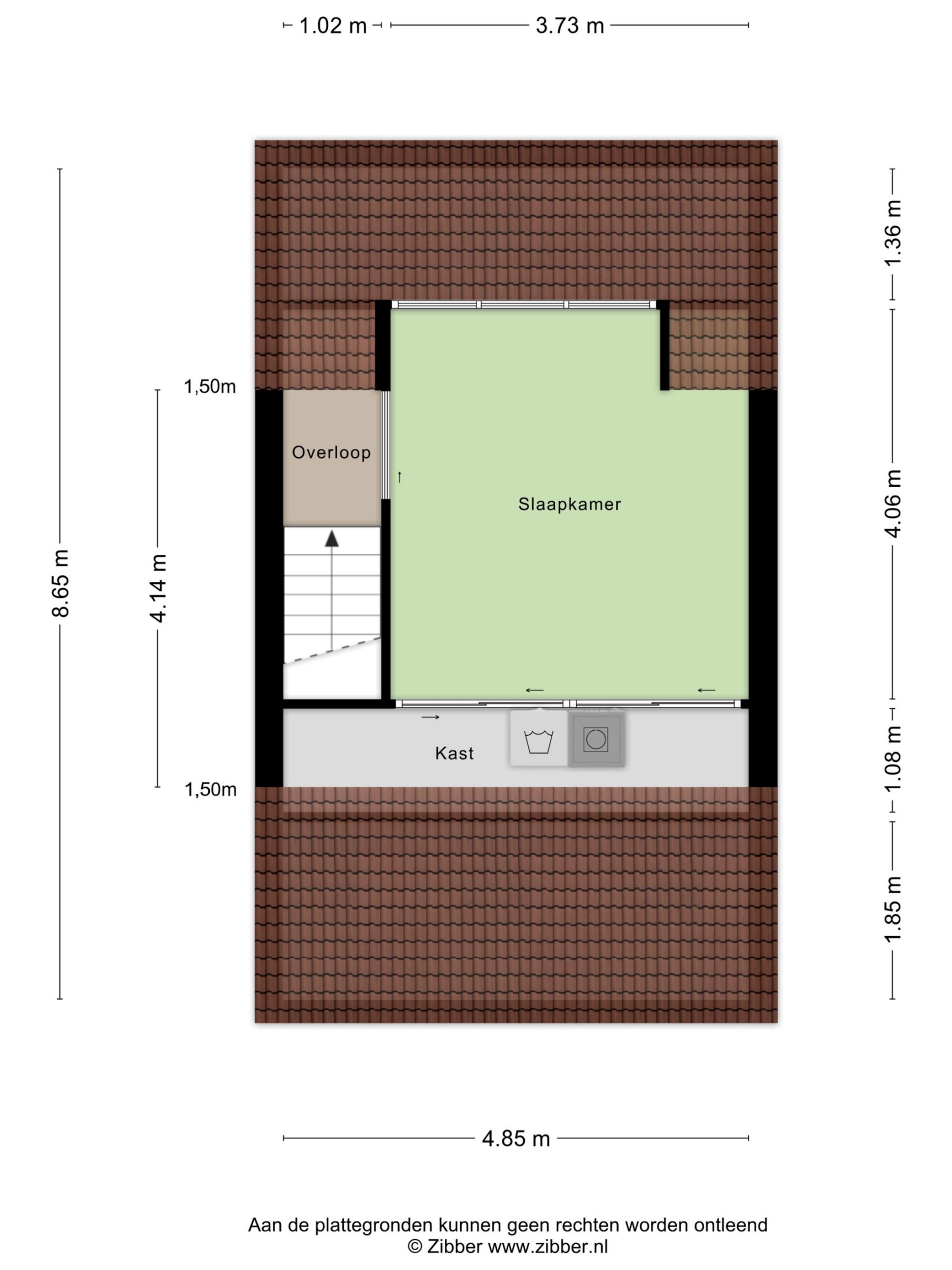
Tweede verdieping
De tweede verdieping biedt een volwaardige vierde kamer, geschikt als slaapkamer, werkruimte of hobbykamer. Daarnaast zijn er praktische schuifkasten aanwezig met daarin de witgoedaansluitingen netjes weggewerkt.
Buitenruimte
Aan de voorzijde beschikt de woning over een carport en een praktische berging, bereikbaar vanuit de carport. De achtertuin is verzorgd aangelegd met een combinatie van bestrating en groen. Achterin de tuin bevindt zich een ruime schuur/berging met mogelijkheid voor een achterom, ideaal voor fietsen en tuinspullen, maar ook een super leuke hobbyruimte of “chillruimte” voor de kinderen. Door de ligging is er altijd wel een plek in de zon of juist in de schaduw te vinden.
Specificaties:
Woonoppervlakte: 114 m²
Gebouw gebonden buitenruimte: 24 m²
Externe bergruimte: 25 m²
Inhoud woning: 430 m³
Perceeloppervlakte: 157 m²
Bouwjaar: 1975
Energielabel: C
Bijzonderheden:
– Tussenwoning, gebouwd in 1975, gelegen in het centrum van Schaijk.
– Landelijk uitgevoerde keukenopstelling met donker werkblad, voorzien van een 5-pits gasfornuis, afzuigkap, combi-oven, vaatwasser en koelkast.
– Ruime woonkamer met volop lichtinval door de grote ramen aan achterzijde.
– Drie slaapkamers. waarvan twee royaal en één iets compacter op de 1ste verdieping
– Badkamer is uitgevoerd met inloopdouche, dubbele wastafel, toilet en mechanische ventilatie.
– Vaste trap naar zolder met royale overloop en 4e (slaap)kamer met dakkapel.
– Verwarming en warm water middels HR combiketel (Remeha Avanta)
– Energielabel C; begane grond voorzien van houten kozijnen en bovenverdieping van Kunststof kozijnen met Isopane beglazing.
– Aangebouwde berging (voorzijde) en vrijstaande schuur (achterzijde) met diverse gebruiksmogelijkheden.
– Op loopafstand van centrum, scholen, kinderopvang en sportvoorzieningen. Schaijk heeft een uitgebreid assortiment aan winkels zoals 2 supermarkten, Hema, Kruidvat, etc. gevestigd in het jonge winkelcentrum.
– De uitgestrekte natuurgebieden de Maashorst en Herperduin met prachtige bossen, heide, vennen en zandvlakten bevinden zich op enkele minuten afstand van de woning. Een prachtige omgeving die naast de centrale ligging ook nog eens heerlijke recreatieve mogelijkheden heeft.
– Goede bereikbaarheid t.o.v. van de steden Nijmegen, ’s-Hertogenbosch en Eindhoven. Door de centrale ligging van Schaijk bevinden de snelwegen A50, A59 en A73 zich op korte afstand.



























































