Sfeervol wonen met vrijheid en ruimte, op een mooie plek in het hart van Herpen, waar je elke dag geniet van rust, licht en een vrij uitzicht aan de achterzijde.
Wat deze woning extra aantrekkelijk maakt, is de praktische indeling. Met relatief eenvoudige aanpassingen is hier uitstekend levensloopbestendig te wonen, dankzij de mogelijkheid voor een slaap- en badkamer op de begane grond. Dat maakt het een huis dat met je meegroeit, in elke fase van het leven.
Begane grond
Je komt binnen via de entree met toiletruimte en trapopgang. Vanuit de hal is tevens de badkamer op de begane grond bereikbaar, voorzien van een inloopdouche en een dubbele wastafel met meubel. Aansluitend loopt u door naar de ruime en lichte woonkamer met eetgedeelte. Dankzij de grote raampartijen aan zowel de voor- als achterzijde geniet deze leefruimte van veel natuurlijk licht en een prettige, open sfeer.
De keuken sluit mooi aan op de woonkamer en vormt een praktisch geheel met de aangrenzende bijkeuken. Vanuit hier heeft u direct toegang tot de tuin, wat zorgt voor een logische en comfortabele indeling van de woning.
Aan de linkerzijde van de woning is een aangebouwde garage gerealiseerd, ideaal voor het stallen van een auto, fietsen en het opbergen van extra spullen. Een praktische ruimte die zorgt voor extra gemak in het dagelijks gebruik.
Eerste verdieping
Op de eerste verdieping bevinden zich twee goed bemeten slaapkamers, netjes afgewerkt en prettig in te delen. Daarnaast is er op de overloop een extra bergruimte aanwezig, altijd handig voor de spullen die je niet dagelijks nodig hebt.
Zolder
De zolder/vliering is bereikbaar via een vlizotrap en biedt praktische bergruimte voor het opbergen van spullen.
Tuin met vrij uitzicht
De achtertuin is keurig aangelegd, onderhoudsvriendelijk en biedt volop privacy. Het vrije uitzicht aan de achterzijde geeft een gevoel van rust en ruimte dat je niet vaak tegenkomt.
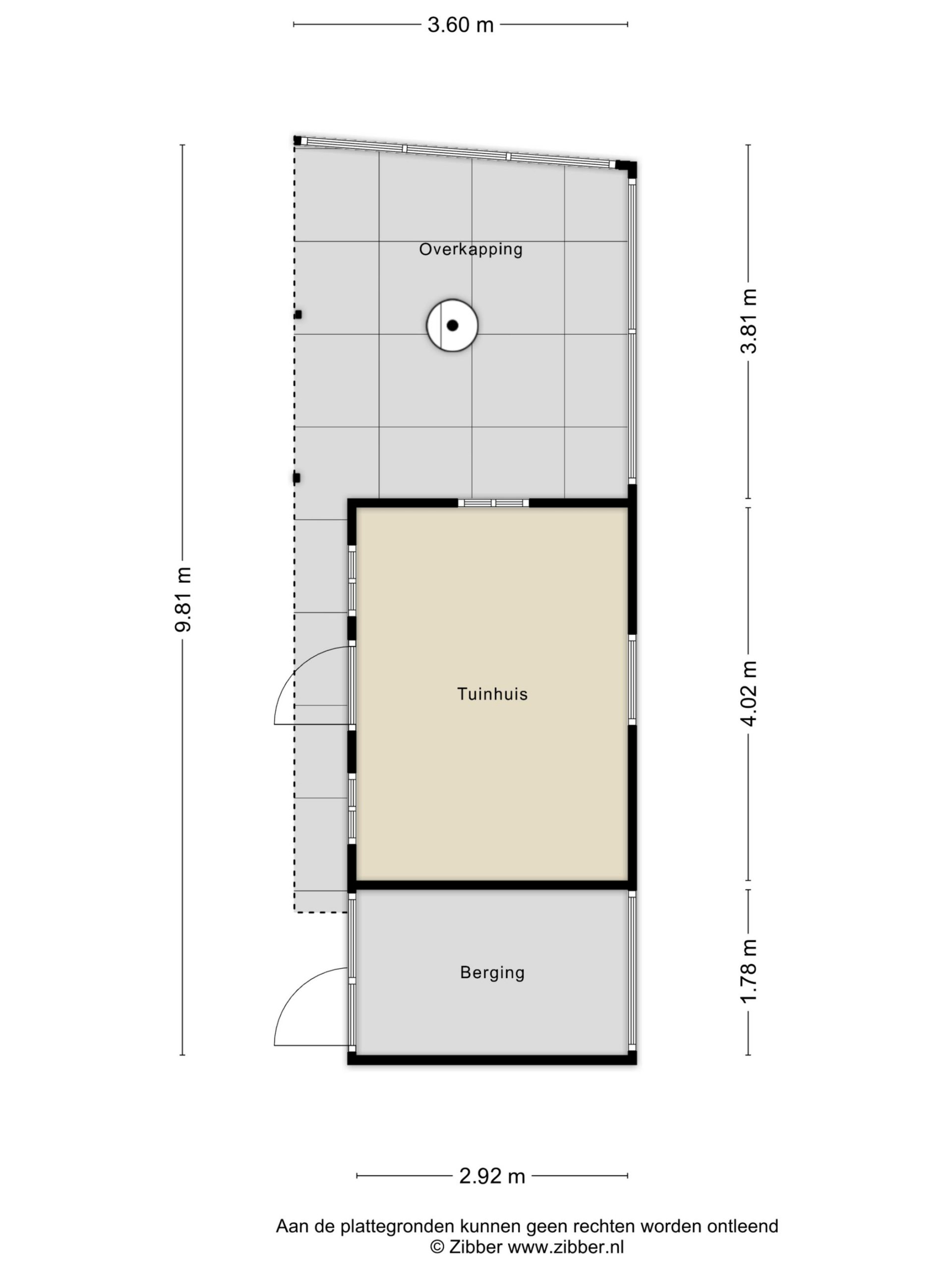
Achterin de tuin staat een royale houten berging, ideaal voor fietsen en opslag. Onder de overkapping zit je beschut en comfortabel, van het eerste voorjaarszonnetje tot lange zomeravonden.
Ligging en bereikbaarheid
Herpen is een gemoedelijk Brabants dorp, omringd door natuur en met alle dagelijkse voorzieningen binnen handbereik. Denk aan een supermarkt, basisschool en huisarts. Voor een uitgebreider aanbod ligt Schaijk op korte fietsafstand. De bereikbaarheid is bovendien uitstekend. Via de A50 ben je snel onderweg richting grotere steden, en het NS-station van Station Ravenstein ligt op korte fietsafstand met verbindingen richting Nijmegen, ’s-Hertogenbosch en Eindhoven.
Specificaties:
Woonoppervlakte: 94 m²
Perceeloppervlakte: 420 m²
Inhoud woning: 404 m³
Externe bergruimte: 17 m²
Bouwjaar: 1989
Energielabel: D
Bijzonderheden:
– Sfeervolle twee-onder-een-kapwoning met oprit, gelegen op een royaal perceel.
– Vrij uitzicht aan de achterzijde, wat zorgt voor een prettig gevoel van rust en ruimte.
– Gelegen in de dorpskern van Herpen, met voorzieningen op korte afstand.
– Praktische indeling met mogelijkheid tot levensloopbestendig wonen (slaapkamer op begane grond realiseerbaar). Badkamer op de begane grond is ingericht met een inloopdouche en dubbel wastafelmeubel.
– Ruime woonkamer met aangrenzend eetgedeelte en grote raampartijen aan zowel de voor- als achterzijde, wat zorgt voor een prettige lichtinval en een open sfeer.
– Keuken met directe aansluiting op de praktisch ingedeelde bijkeuken, voorzien van extra bergruimte en met toegang tot de tuin.
– De eerste verdieping beschikt over twee ruime slaapkamers, beide praktisch in te delen en geschikt voor verschillende woonwensen. Desgewenst is hier eenvoudig een derde slaapkamer te realiseren.
– Aangebouwde garage aan de linkerzijde, ideaal voor het stallen van een auto, fietsen en extra bergruimte.
– Verzorgde achtertuin met een praktische, onderhoudsvriendelijke inrichting, waar je volop geniet van privacy én een prettig vrij uitzicht aan de achterzijde.
– Overkapping in de tuin, ideaal om beschut buiten te zitten en te genieten van het uitzicht.
– Royale houten berging van prettig formaat, ideaal voor het stallen van meerdere fietsen, het opbergen van tuingereedschap en het creëren van extra praktische opslagruimte.
– Eigen oprit met parkeergelegenheid op eigen terrein en tevens voldoende openbare parkeergelegenheid in de directe omgeving.
– De winkel- school- en sportvoorzieningen zijn goed te noemen en bevinden zich in de nabije omgeving op loop-/ fietsafstand.
– Woning gelegen nabij de op- en afritten van de snelweg A50 met directe verbinding naar Nijmegen en Arnhem in noordelijke richting en naar Oss, ’s-Hertogenbosch en Eindhoven in zuidelijke richting.
– NS-station met goede treinverbinding naar Nijmegen/’s-Hertogenbosch bevindt zich op korte afstand in nabij gelegen Ravenstein.














































