Wonen met uitzicht én karakter; Split-level tussenwoning met inpandige garage, royaal souterrain en vrij zicht op de Maas.
Sommige woningen voelen direct goed. Door de lichtinval, de indeling, het uitzicht. Aan de Dokter Kanterslaan 188 komt dat allemaal samen. Deze speels opgebouwde split-level woning biedt twee tot drie royale slaapkamers, twee badkamers en een recent vernieuwde leefkeuken. Een comfortabel en onderscheidend woonhuis voor wie nét even meer zoekt dan standaard.
Vrij uitzicht over de Maas
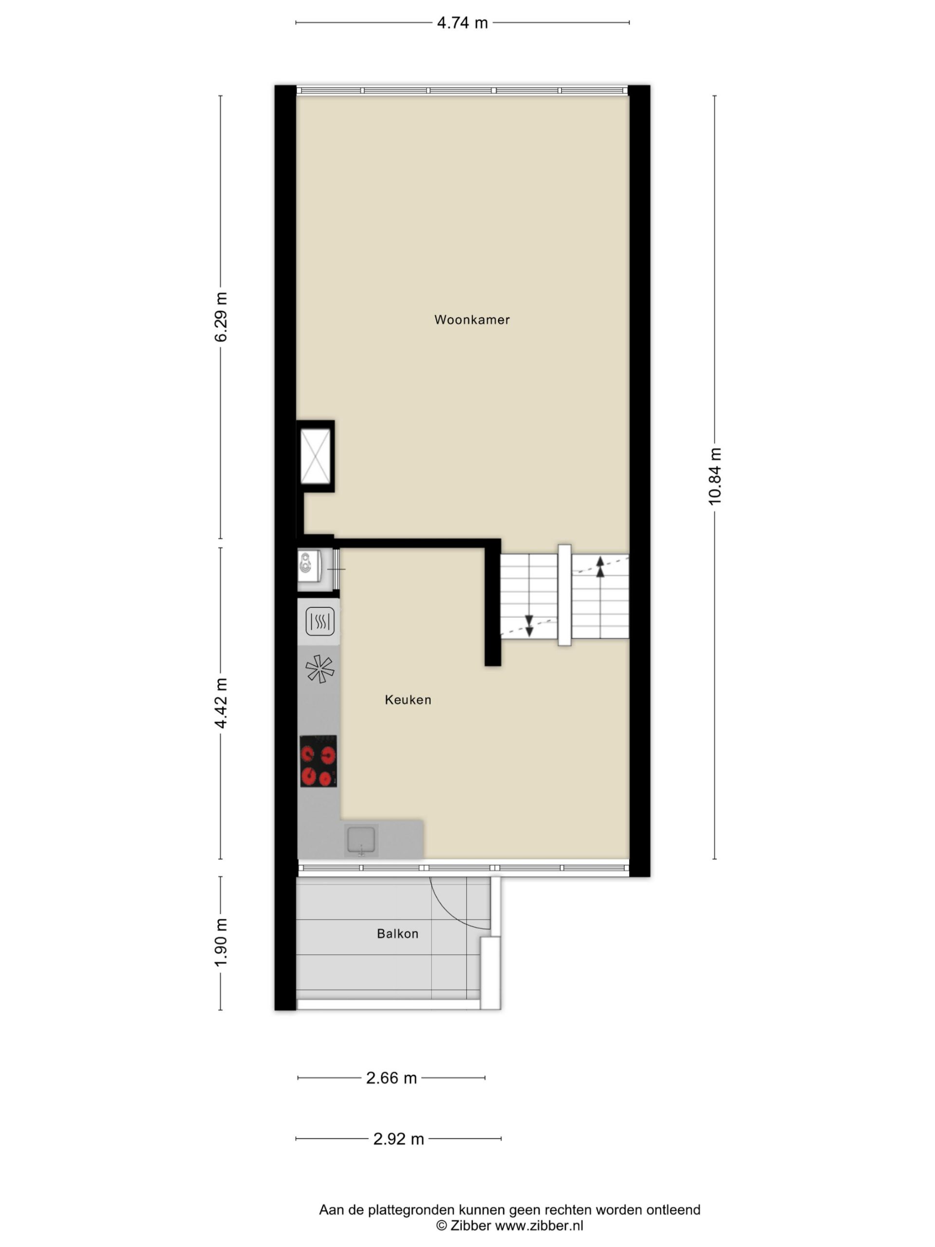
De woonkamer ligt op hoogte en profiteert optimaal van het brede uitzicht over de rivier en uiterwaarden. De grote raampartijen zorgen voor een prachtige lichtinval en een levendig decor dat met de seizoenen meebeweegt. Eén niveau lager bevindt zich de leefkeuken aan de zuidzijde met toegang tot het balkon.
Extra bijzonder is dat deze woning is voorzien van een royaal souterrain, welke voor meerdere doeleinden kan worden ingezet.
In de keuken ligt een betonlook vloer, de overige ruimten zijn voorzien van een houtlook PVC-vloer. De open houten trap en rustige wandafwerking zorgen voor een samenhangend geheel. De badkamers dateren uit 2004 en bieden de mogelijkheid om indien gewenst deze naar eigen smaak te moderniseren.
Niveau 1 (souterrain)
Hal met toegang tot een royale werk-, hobby- of slaapkamer met hoge ramen.
Niveau 2 (begane grond / tuinniveau)
Entree met hal. Badkamer voorzien van dubbele wastafel, douche en toilet. Royale slaapkamer met deur naar het terras en trap naar de tuin. Inpandige garage aan de straatzijde.
Niveau 3 (keukenlaag)
Licht uitgevoerde leefkeuken uit 2024 met houtlook fronten, composiet werkblad en inbouwapparatuur. Toegang tot het balkon en voldoende ruimte voor een royale eettafel.
Niveau 4 (woonkamerlaag)
Sfeervolle woonkamer met hoog plafond, open haard en breed vrij uitzicht over de Maas. Doorkijk naar de vide zorgt voor extra ruimtelijkheid.
Niveau 5 (bovenste verdieping)
Overloop met vide. Slaapkamer met vaste bergruimte en airco (2024). Tweede badkamer met ligbad, wastafelmeubel en toilet.
Buitenruimte en parkeren
De achtertuin beschikt over een ruim terras, verharding en tuinhuis. Via de toegangspoort is de achtertuin ook via de dijkzijde te bereiken. Aan de voorzijde is parkeergelegenheid op eigen terrein en daarnaast voldoende openbare parkeerruimte op de parkeerplaats. Een woning met een eigen karakter, een solide basis en een uitzicht dat nooit verveelt. Hier woon je comfortabel, ruim en op een plek waar water en landschap altijd dichtbij zijn.
Specificaties:
Woonoppervlakte: 137 m²
Perceeloppervlakte: 143 m²
Inhoud woning: 544 m³
Garage: 17 m²
Terras: 21 m²
Bouwjaar: 1979
Energielabel: C (8 zonnepanelen, 2022)
Bijzonderheden:
– Unieke split-level tussenwoning met woonkamer op hoogte en panoramisch Maas-uitzicht.
– Instapklaar: consistent interieur met PVC vloer en gestucte wanden.
– Royale leefkeuken uit 2024 met warme houtlook fronten, greeploos uitgevoerd en voorzien van complete inbouwapparatuur, inclusief inductiekookplaat, Quooker en koffiecorner.
– Op het tuinniveau ligt een praktische badkamer met inloopdouche en toilet – ideaal voor dagelijks gebruik en logees. Op de bovenste woonlaag bevindt zich een tweede, comfortabele badkamer met ligbad, wastafel(meubel) en toilet, perfect om de dag ontspannen af te sluiten.
– Buitenleven: balkon bij keuken aan zuidzijde en fijn formaat tuin met terras en tuinhuis.
– Inpandige garage (ca. 17 m²) voor auto/fietsen/opslag met geïsoleerde elektrische garagedeur, plus eigen parkeerplek direct voor de woning.
– 8 zonnepanelen (2022) – Airco (2024).
– Op fietsafstand van het historische centrum van Grave en met snelle verbindingen naar Nijmegen, ’s-Hertogenbosch en Eindhoven. Een ideale uitvalsbasis voor forenzen én levensgenieters.
– Rustige, groene woonomgeving op fietsafstand van het historische centrum, winkels, horeca en uiterwaarden.




























































